Beschrijving

Ruime drive-in woning met garage, ruime badkamer en keuken en zonnige tuin op het zuiden – Bentelobrink 115, Enschede

Ben je op zoek naar een ruime, gewoon goed onderhouden woning met ruimte én comfort? Dan is deze drive-in woning aan de Bentelobrink 115 echt een buitenkans!
Gebouwd in 1970, maar helemaal van deze tijd dankzij de moderne badkamer en toilet, kunststof kozijnen met HR++ beglazing en een fijne indeling met verrassend veel leefruimte. Hier hoef je alleen nog maar te schilderen, je koffers uit te pakken en lekker te gaan wonen.

Waarom dit huis zo fijn is
Lekker veel ruimte met ca. 116 m² woonoppervlak
Garage én parkeerplaats voor de deur
Moderne badkamer en toilet – de grote klussen zijn al gedaan
Vier slaapkamers (waarvan één op de begane grond, ideaal als werk- of hobbykamer)
Zonnige tuin op het zuiden zonder directe achterburen
Gunstige ligging in een rustige, kindvriendelijke buurt met speeltuin aan de voorzijde
Volledig voorzien van kunststof kozijnen met HR++ beglazing
VVE-onderhoud aan dak en gevels, bijdrage ca. € 75,- per maand

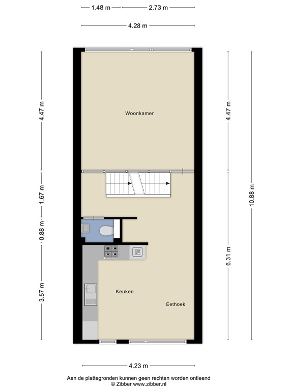
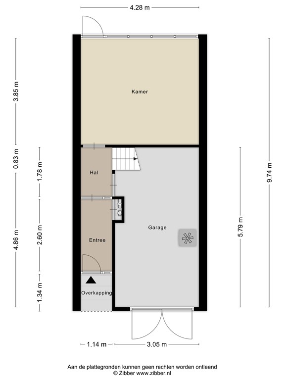
Indeling
Begane grond
Via de overdekte entree kom je in de hal met meterkast, binnendeur naar de garage en toegang tot een royale slaapkamer of hobbyruimte. Deze kamer grenst aan de achtertuin, en is heerlijk licht door de grote raampartij. De garage heeft volwassen afmetingen – ideaal voor je auto, motor, wasruimte of extra opslag.

Eerste verdieping
Hier vind je de lichte woonkamer met uitzicht op de tuin en een ruime woonkeuken aan de voorzijde. De keuken is netjes en biedt plek voor een grote eettafel, perfect voor gezellige diners. Vanaf de overloop is het toilet met wandcloset en fontein bereikbaar.

Tweede verdieping
Op deze verdieping zijn drie volwaardige slaapkamers, twee aan de achterzijde en de master bedroom aan de voorkant van de woning. De  moderne en ruime badkamer is voorzien van een inloopdouche, dubbele wastafelmeubel en tweede toilet.

Buiten
De tuin aan de achterzijde is lekker privé en zonnig dankzij de zuidelijke ligging. Geen achterburen, dus volop rust en ruimte om te genieten. Aan de voorzijde heb je uitzicht op een groene brink met speelgelegenheid – ideaal voor gezinnen.

Praktisch & comfortabel
De woning is aangesloten op blokverwarming (onderhoud via VvE), warm water via een huurgeiser, en beschikt over energielabel C dankzij de kunststof kozijnen en isolatie.

Kort samengevat
- Bouwjaar: 1970
- Woonoppervlakte: ca. 116 m²
- Inhoud: ca. 471 m³
- Perceeloppervlakte: ca. 97 m²
- Garage: ca. 17 m²
- Zonnige tuin op het zuiden
- modern sanitair
- VVE-bijdrage: € 75,- p/m (dak & gevelonderhoud)
- Energielabel C

Waarom je dit huis wilt zien

Een drive-in woning met deze ruimte, onderhoudsstaat en ligging kom je niet vaak tegen. De combinatie van comfort, privacy en praktische indeling maakt dit een heerlijke plek om te wonen — of je nu starter, gezin of thuiswerker bent.

Nieuwsgierig geworden?
Plan snel een bezichtiging en ontdek zelf hoe fijn het wonen is aan de Bentelobrink 115 in Enschede.

Kenmerken