Beschrijving

Royaal wonen in hartje Enschede – Celebesstraat 41
Op een unieke, rustige locatie vlak bij het bruisende centrum van Enschede ligt deze verrassend ruime en speels ingedeelde woning met maar liefst vier woonlagen, een inpandige garage en een royaal dakterras van 19 m². Met bijna 180 m² woonoppervlak en 30 m² overige inpandige ruimte biedt deze woning ruimte, comfort en stadse luxe in één. De woning is bovendien volledig voorzien van vloerverwarming en gedeeltelijk voorzien van airconditioning.

Locatie
De ligging is werkelijk ideaal: nagenoeg in het centrum van Enschede, met winkels, restaurants, openbaar vervoer, scholen en andere voorzieningen op steenworp afstand. Toch woon je hier in alle rust, met het comfort van een moderne stadswoning én het groene karakter van een goed onderhouden binnentuin.

Indeling
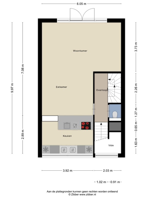
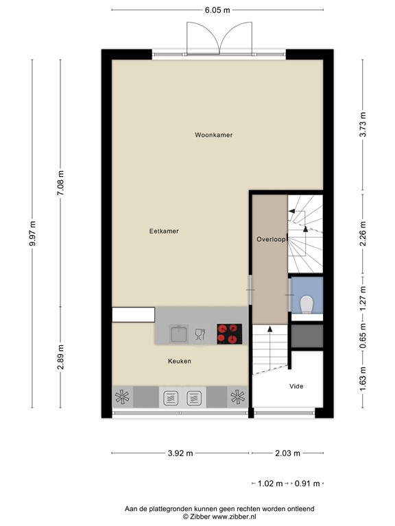
De woning heeft een gedeeltelijk split-level indeling, wat zorgt voor een speels karakter en veel lichtinval. Via de entree kom je in de ruime woonkamer, die direct toegang biedt tot de tuin. Deze tuin grenst aan de fraai aangelegde binnentuin van het appartementencomplex Quatre Mains, wat zorgt voor rust, privacy en een groene omgeving.

Een halve verdieping hoger bevindt zich de moderne keuken, luxe uitgevoerd met diverse inbouwapparatuur en gelegen op een verhoogd niveau, wat een open maar toch aparte eetkeuken creëert.

In de kelderverdieping tref je een ruime garage en berging, ideaal voor het stallen van fietsen, opslag of een hobbyruimte.

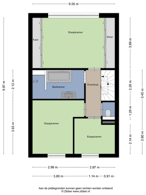
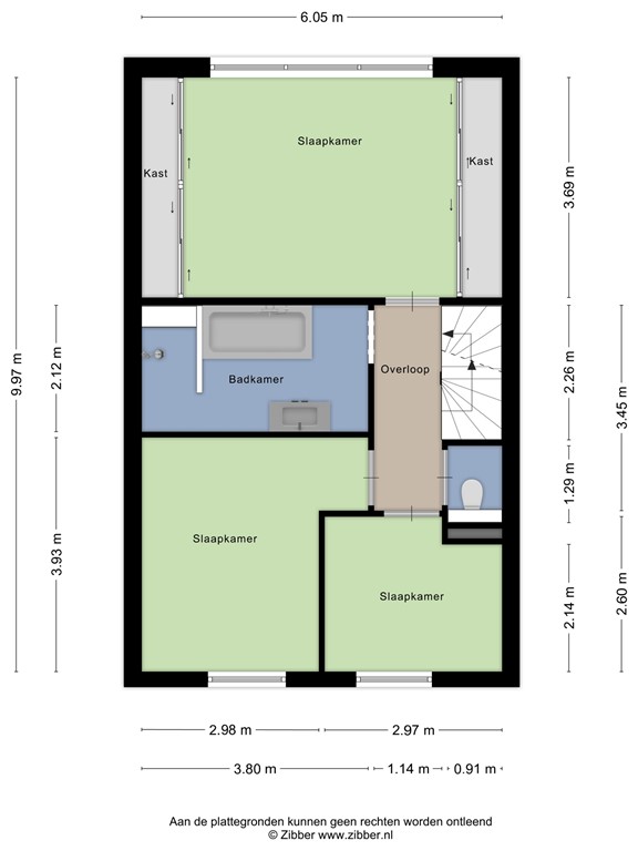
Op de eerste verdieping bevinden zich drie slaapkamers en een luxe badkamer met ligbad, inloopdouche en een separaat toilet.

De tweede verdieping herbergt een zeer ruime slaapkamer en een extra kamer die nu dienstdoet als kastenkamer. De overloop is opvallend licht door de mooie lichtstraat. Aansluitend aan de slaapkamer ligt het zonnige dakterras, perfect voor lange zomeravonden of een rustige koffiepauze in de ochtendzon.

Kenmerken
– Bouwjaar: 2001
– Woonoppervlakte: ca. 180 m²
– Overige inpandige ruimte (kelder, garage): ca. 30 m²
– Dakterras: ca. 19 m²
– 4 slaapkamers
– Luxe keuken en badkamer
– Inpandige garage en berging
– Volledig voorzien van vloerverwarming
– Gedeeltelijk voorzien van airconditioning
– Gedeeltelijk split-level indeling
– Energiezuinig
– Gelegen in gewild complex Quatre Mains
– Rustige ligging met alle stadse voorzieningen op loopafstand

Ben je op zoek naar ruimte, luxe en een centrale ligging? Dan is Celebesstraat 41 jouw nieuwe thuis. Maak snel een afspraak voor een bezichtiging en laat je verrassen!

Kenmerken