Beschrijving

Aan een rustige straat in Glanerbrug ligt deze volledig gemoderniseerde en energiezuinige woning (energielabel A), waar comfort, luxe en functionaliteit perfect samenkomen. Een ideale woning voor gezinnen én zeer geschikt voor de zelfstandig ondernemer dankzij de ruime garage/hobbyruimte.

Bij binnenkomst valt direct de moderne afwerking op. De ruime woonkamer is licht en sfeervol en staat in open verbinding met de zeer luxe keuken, die is voorzien van een kookeiland en diverse hoogwaardige inbouwapparatuur. Via de openslaande deuren bereikt u de fraai aangelegde achtertuin, waardoor binnen en buiten naadloos in elkaar overlopen.

Op de begane grond bevinden zich een moderne badkamer én een separaat toilet, wat zorgt voor extra comfort.

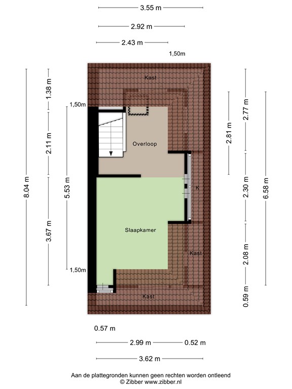
De eerste verdieping beschikt over twee ruime slaapkamers en een apart toilet. De zolderverdieping biedt een derde, royale slaapkamer met dakkapel, wat zorgt voor extra ruimte en daglicht.

De woning beschikt over een onderhoudsarme achtertuin op het zuiden, compleet met een fraaie overkapping: een heerlijke plek om het hele jaar door te genieten. Aan de voorzijde is er voldoende parkeergelegenheid.

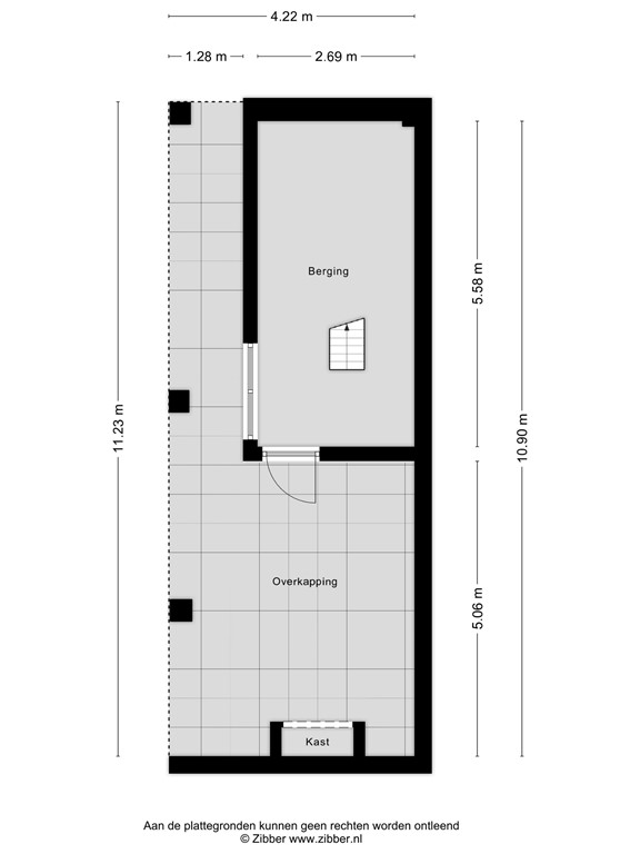
De ruime garage/hobbyruimte maakt deze woning uitermate geschikt voor een zelfstandig ondernemer, hobbyist of iedereen die extra werk- of opslagruimte zoekt.

Kortom: een instapklare, luxe en energiezuinige woning op een fijne locatie, die absoluut een bezichtiging waard is.

Indeling

Begane grond:
Entree, hal, doorgang naar de ruime woonkamer, vanuit de woonkamer is tevens de 1e etage te bereiken (middels een fraai weggewerkte trap), aansluitend het eetgedeelte en de doorgang naar de zeer luxe moderne keuken voorzien van diverse inbouwapparaten en een ruim kookeiland. Op de begane grond bevindt zich tevens de moderne badkamer met douche en wastafelmeubel. Er is een separaat toilet aanwezig. 

1e etage:
Overloop, 2 ruime slaapkamers, toilet.

Zolder etage:
Overloop, ruime slaapkamer.

Tuin:
De hoofdtuin is op het zuiden gelegen, aan de achterzijde bevindt zich een zeer fraaie overkapping en een ruime garage/hobbyruimte. Aan de voorzijde van de woning is voldoende parkeergelegenheid op eigen terrein.

Kenmerken