Beschrijving

Pinksterbloemstraat 28 – Enschede

In een rustige, ruim opgezette en groene straat ligt deze fijne tussenwoning aan de Pinksterbloemstraat 28. De wijk staat bekend om haar prettige woonklimaat, met veel groen en een vriendelijke, gemoedelijke sfeer. Het is een omgeving waar jong en oud zich snel thuis voelt. Alle dagelijkse voorzieningen zoals winkels, supermarkten, scholen, kinderopvang en sportvoorzieningen bevinden zich op korte afstand. Ook openbaar vervoer en uitvalswegen zijn goed bereikbaar, waardoor het centrum van Enschede eenvoudig te bereiken is.

De woning is aan de achterzijde uitgebouwd en beschikt over een ruime, lichte woonkamer met prettig zicht op de tuin. De diepe achtertuin, gelegen op het noordoosten, biedt dankzij de diepte en open ligging toch volop zonuren en is daarmee een fijne plek om te ontspannen en te genieten van het buitenleven.

De keuken is uitgevoerd in een neutrale kleurstelling en beschikt over voldoende werk- en bergruimte. Op de verdieping bevinden zich drie slaapkamers en een eenvoudige, functionele badkamer. Daarnaast is er een praktische bergzolder, ideaal voor extra opslag.

Een woning met een goede basis, veel leefruimte en een prettige ligging in een groene en rustige wijk met alle voorzieningen binnen handbereik — ideaal voor starters en jonge gezinnen.

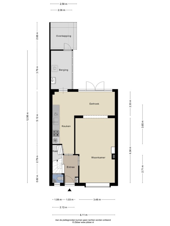
Indeling:

Begane grond:
Entree, hal, toilet, trapopgang naar de 1e etage en doorgang naar de woonkamer. Vanuit de ruime uitgebouwde woonkamer is de tuin, middels terrasdeuren te bereiken en de in neutrale kleur uitgevoerde keuken. In de keuken bevindt zich een ruime trapkast. Vanuit de keuken is de berging/bijkeuken te bereiken met opstelling cv en was/droogautomaat.

1e etage:
Overloop, 3 slaapkamers, eenvoudige badkamer voorzien van wastafel en douche.

Bergzolder:
Middels een vlizotrap te bereiken bergzolder. Bij diverse woningen in de straat is er meer ruimte gecreëerd door de nok van de zolder te verhogen. Door deze verbouwing ontstaat de mogelijkheid voor 1 tot 2 extra kamers.

Tuin:
Een op het noordoosten georiënteerde achtertuin met overkapping en achterom.

Kenmerken