Beschrijving

Ben je op zoek naar een woning met charme, een rustige ligging én volop mogelijkheden om jouw woonwensen waar te maken?
Dan is deze prachtige tweekapper uit 1913 precies wat je zoekt. Het huis combineert het warme karakter van vroeger met het comfort van nu en staat op een royaal perceel in een rustige, groene buurt, ideaal voor iedereen die ruimte en rust waardeert.

De woning ligt aan een sfeervolle straat met historische woningen en vormt daar zelf een prachtig voorbeeld van.
Met een gebruiksoppervlakte van 79,40 m² en een inhoud van 285,46 m³ biedt het huis een praktische en prettige leefomgeving. Binnen vind je onder andere:
– een nette, standaard keuken
– een gezellige woon- en eetkamer, perfect voor een compact maar comfortabel huishouden
– een functionele badkamer
– drie slaapkamers van fijne afmetingen, waarvan één wat bescheidener en daardoor ideaal als kantoor, hobbykamer of kinderkamer

Naast het karaktervolle en knusse interieur is de ligging een groot pluspunt, met in de directe nabijheid:
– het gezellige winkelcentrum Twekkelerveld met alle dagelijkse voorzieningen
– diverse sportfaciliteiten en sportverenigingen
– meerdere speel- en wandelmogelijkheden in de directe omgeving

Ook het stadscentrum, met zijn vele horecagelegenheden en winkels, ligt op korte fietsafstand.

Wat dit huis echter écht onderscheidt, is het grote perceel met eindeloos potentieel. Er is volop ruimte om jouw droomtuin te realiseren of om de woning uit te breiden, helemaal naar eigen wens.

Dankzij het riante perceel en de aanwezige garage met extra bergruimte biedt deze woning uitstekende mogelijkheden voor ondernemers, thuiswerkers en hobbyisten. Parkeren op eigen terrein behoort uiteraard tot de opties. De combinatie van stijl, ligging en kavelgrootte maakt dit tot een plek waar je kunt groeien, creëren en vormgeven zoals jij dat wilt.

Een huis met karakter, rust, ruimte en kansen, de perfecte basis voor jouw volgende stap.

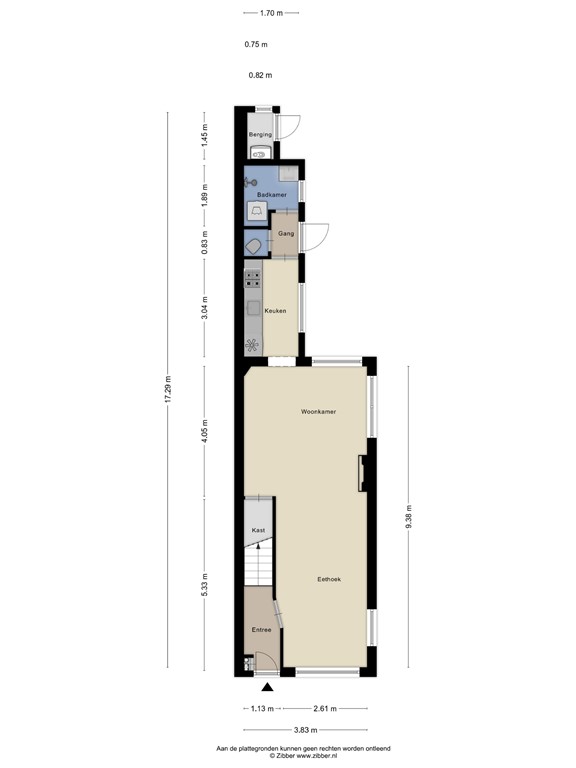
Indeling:

Begane grond: 
Entree, hal met trap naar de 1e verdieping. Lichte woonkamer met een gezellige sierhaard en plaats voor een zithoek en eettafel. De keuken is voorzien van koelkast, gaskookplaat en afzuigkap. Tweede hal met een deur naar het toilet, de badkamer en de tuin. De badkamer is uitgerust met een douche en een wastafelmeubel.

Eerste verdieping: 
Overloop. goed formaat slaapkamer aan de achterzijde over de gehele breedte van de woning tweede kamer met dakkapel en de derde slaapkamer aan de voorzijde over de gehele breedte van de woning met drie inbouwkasten.

Tuin: 
Ruime tuin voorzien van bestrating, gras en een garage met bergruimte

Kenmerken