Beschrijving

Ben jij niet bang om je handen uit de mouwen te steken? Dan is dit jouw kans om een karakteristieke jaren ’30 woning helemaal naar je eigen smaak op te knappen en in te delen.

De woning ligt in "Dolphia", een groene en kindvriendelijke wijk in het oosten van Enschede, op slechts een paar minuten van de Duitse grens. Rondom de wijk wordt volop gebouwd aan het nieuwe "Eschmarkerveld", wat de buurt een frisse boost geeft. Alles wat je nodig hebt is dichtbij: treinstation De Eschmarke, winkels, scholen, sportverenigingen – en binnen 10 minuten fietsen zit je op een terrasje in de gezellige binnenstad.

Indeling
Begane grond
Hal met trapopgang, meterkast en toegang tot de woonkamer. In de woonkamer valt meteen de erker op met uitzicht over het plantsoen. Achterin vind je de keuken en badkamer, beide toe aan een flinke make-over.

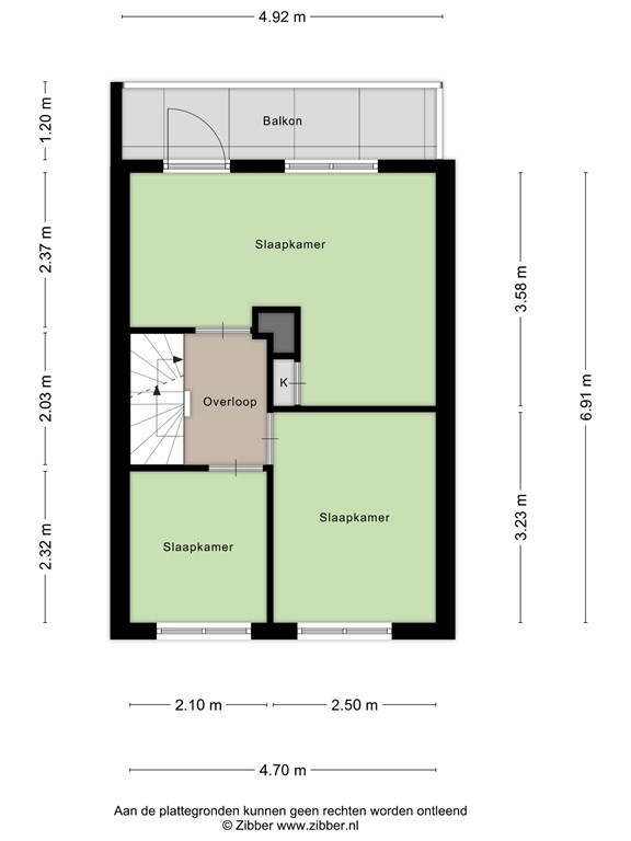
Eerste verdieping
Overloop met drie slaapkamers. Twee liggen aan de voorkant, de grootste aan de achterkant mét balkon en inbouwkast.

Tweede verdieping
Strak afgewerkt en nu in gebruik als ruime slaapkamer, maar je kunt hier ook eenvoudig twee kamers van maken.

Buiten
Een diepe tuin op het westen met meerdere bergingen en achterom – ideaal voor wie van buitenruimte houdt.

Pluspunten

* Woonoppervlakte: 88 m², perceel: 224 m²
* Rustige, maar centrale ligging met vrij uitzicht
* Nieuwe wijk in aanbouw rondom
* Kluswoning met veel potentie
* Diepe tuin op het westen
* Vier slaapkamers

Deze presentatie is informatief en geheel vrijblijvend. Aan eventuele onjuistheden kunnen geen rechten worden ontleend. 
In de koopakte zal een deponering van 10 % waarborgsom of bankgarantie door de koper worden opgenomen. Voor woningen ouder dan 30 jaar is de "ouderdomsclausule" van toepassing. Voor woningen gebouwd voor 1993 is de "asbestclausule" van toepassing.
Op deze woning zijn tevens de "niet zelf bewoningsclausule" en "as is where is" van toepassing.

Kenmerken