Beschrijving

Ruime 2-onder-1-kapwoning met privacyrijke tuin, garage en moderne voorzieningen

Ben je op zoek naar een comfortabele gezinswoning met veel leefruimte, een zonnige tuin én volop privacy? Dan is deze verrassend ruime 2-onder-1-kapwoning precies wat je zoekt.

Gelegen op een royaal perceel beschikt deze woning over een eigen oprit, garage en een heerlijke overkapping waar je tot in de late uurtjes buiten kunt genieten. De zonnige tuin is sfeervol aangelegd en biedt veel privacy — een echte buitenruimte om tot rust te komen.

Binnen tref je een ruime, lichte woonkamer en een nette keuken in de aanbouw, compleet met een gezellige ontbijtplek. Via de openslaande terrasdeuren loop je zo de tuin in. De praktische bijkeuken zorgt voor extra opslag en gemak.

Op de eerste verdieping bevinden zich twee comfortabele slaapkamers en een badkamer met douche, toilet en wastafel in een neutrale kleurstelling. De zolderverdieping biedt een derde slaapkamer, een bergvliering en de mogelijkheid voor een vierde slaapkamer.

Duurzaam wonen? Deze woning is voorzien van zonnepanelen, gevel- en dakisolatie en heeft energielabel C, goed voor het milieu én je portemonnee.

Ook de locatie is ideaal: de woning ligt op fietsafstand van het centrum, in de nabijheid van diverse winkelcentra en scholen. Daarnaast zijn de uitvalswegen snel en eenvoudig bereikbaar, wat het wooncomfort nog verder vergroot.

Pluspunten op een rij:

- 2-onder-1-kapwoning

- Ruim perceel met garage

- Zonnige tuin met veel privacy

- Ruime woonkamer en nette keuken met terrasdeuren

- Bijkeuken en overkapping

- 3 (mogelijk 4) slaapkamers

- Zonnepanelen en isolatie

- Energielabel C

- Dicht bij uitvalswegen

- Fietsafstand tot het centrum

- Nabij winkels en scholen

Kortom: een ideale gezinswoning op een aantrekkelijke locatie waar je zo in kunt.


Indeling:

Begane grond:
Entree, hal, doorgang naar de ruime keurig verzorgde woon/eetkamer met openhaard. Doordat aan beide zijden grote ramen aanwezig zijn is de lichtinval optimaal. Aansluitend de hal/bijkeuken met toegang tot de tuin. Hier is ook het keurig gemoderniseerde toilet gesitueerd. In deze ruime doorgang naar de keuken is een extra keukenblok geplaatst met de opstelplaats voor de wasautomaat, een extra werkblad en veel bergruimte. Aan het einde van deze hal is de keuken geplaatst, door de hoogte in de keuken wordt het ruimtelijke gevoel extra versterkt. De goede onderhouden keuken is voorzien van diverse apparaten. In de keuken is ruimte voor een ontbijtplek. De keuken is voorzien van terrasdeuren waardoor de tuin en overkapping makkelijk te bereiken zijn.
Vanuit de keuken is tevens een extra bergvliering te bereiken.

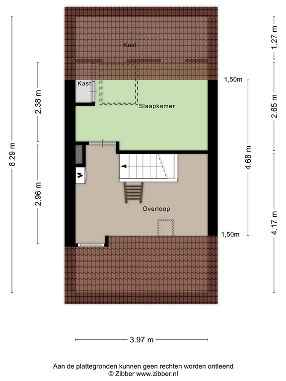
1e etage:
Overloop met vaste trap naar de zolderetage, 2 slaapkamers, waarvan de ouderlijke slaapkamer is voorzien van een grote inbouwkast. Op deze etage bevindt zich de badkamer, eveneens goed onderhouden en voorzien van toilet, douche en wastafelmeubel.

Zolder:
Middels de vaste trap te bereiken zolderetage met ruime overloop met opstelling HR ketel (eenvoudig om te bouwen tot slaapkamer) en een slaapkamer.

Bergvliering:
Middels een voorzet trap te bereiken bergvliering.

Tuin:
Een op het noordwesten georiënteerde achtertuin met ruime overkapping en garage. Naast de woning bevindt zich een parkeerplek voor een auto.

Kenmerken