Beschrijving

Ben je op zoek naar een ruime en energiezuinige gezinswoning in een fijne, groene en kindvriendelijke wijk? Dan is dit huis aan de Pierre Monteuxstraat in Hengelo misschien wel precies wat je zoekt!

Deze tussenwoning heeft maar liefst 129 m² woonoppervlakte, met een royale woonkamer, halfopen keuken, een aangebouwde overkapping en in totaal 4 slaapkamers (en zelfs de mogelijkheid voor een 5e). De kunststof kozijnen met HR++ beglazing en bijna volledige isolatie zorgen voor een gunstig energielabel B. De diepe achtertuin op het zuidwesten maakt het plaatje compleet – hier geniet je de hele dag van de zon.
Rustig gelegen aan een voetgangerspad aan de voorzijde maar ook bereikbaar met de auto via de algemene parkeerplaats aan de achterzijde.

De woning
Bij binnenkomst kom je in de hal met toilet, meterkast en trapopgang. De royale woonkamer is heerlijk licht dankzij de  grote ramen en openslaande deuren naar de tuin. De halfopen keuken sluit er mooi op aan en onder de overkapping geniet je van het buitenleven – zelfs tot ver in het najaar.

Op de eerste verdieping vind je drie volwaardige slaapkamers en een nette badkamer met inloopdouche, wastafel en toilet. 

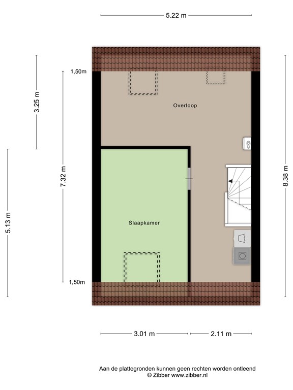
De tweede verdieping biedt nog een ruime slaapkamer, wasruimte en veel extra bergruimte Ook is hier eenvoudig een vijfde slaapkamer, thuiskantoor of hobbykamer te realiseren. 

De tuin
De achtertuin is lekker diep en gunstig gelegen op het zuidwesten, dus altijd een plek in de zon. Achter in de tuin staat een stenen berging en via de achterom loop je zo naar de parkeerplaatsen.

De omgeving
De woning ligt in de populaire wijk *Hasseler Es*, een rustige en groene woonwijk met volop voorzieningen in de buurt. Winkelcentrum Hasselo ligt om de hoek voor al je dagelijkse boodschappen. Scholen, sportverenigingen en speelplekken zijn op loop- of fietsafstand bereikbaar. Ook de bereikbaarheid is uitstekend met goede busverbindingen en snelle toegang tot de A1 en A35.

Bijzonderheden:
- Bouwjaar 1978
- Woonoppervlakte ca. 129 m²
- Perceel 143 m²
- Energielabel B (geldig t/m 2035)
- 4 slaapkamers (5 mogelijk)
- Zonnige tuin op het zuidwesten
- Voorzien van HR++ glas, dak- en muurisolatie
- Kunststof kozijnen
- Vrijstaande stenen berging
- Aanvaarding in overleg

Kortom: een instapklare, ruime woning op een rustige maar centrale plek in Hengelo. Kom snel kijken en laat je verrassen door de ruimte en mogelijkheden van deze fijne gezinswoning!

Deze presentatie is informatief en geheel vrijblijvend. Aan eventuele onjuistheden kunnen geen rechten worden ontleend. 
In de koopakte zal een deponering van 10 % waarborgsom of bankgarantie door de koper worden opgenomen. Voor woningen ouder dan 30 jaar is de ouderdomsclausule van toepassing. Voor woningen gebouwd voor 1993 is de asbestclausule van toepassing.

Kenmerken